









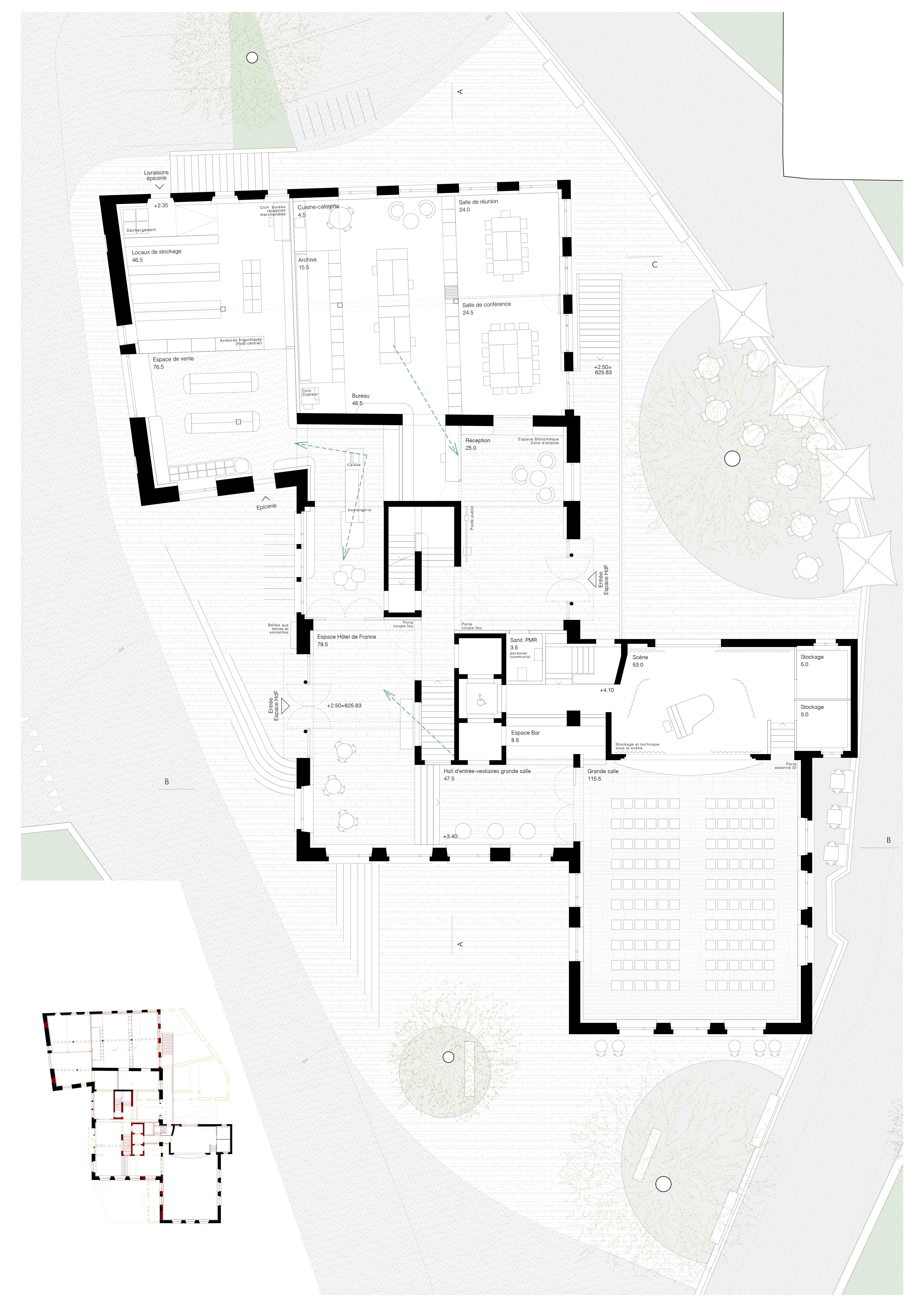
Im kleinen Dorf Cuarnens, zwischen der Venoge und der Hauptstrasse, steht das Hôtel de France.Der bestehende Komplex wurde sorgfältig umgebaut und saniert, mit dem Ziel, die im Laufe der Jahre gewachsenen Nutzungen räumlich und funktional neu zu ordnen. Restaurant, Gemeindeverwaltung, Dorfladen und Mehrzwecksaal gruppieren sich heute um eine neu geschaffene zentrale Erschliessungszone.
Die Eingangshalle bildet das Herzstück der Anlage. Sie fungiert als Begegnungsort und erweitert den öffentlichen Raum sinnbildlich in das Gebäude hinein – wie eine Fortsetzung des Dorfplatzes.
Durch eine gezielte Umorganisation der Verkehrsführung kann die Qualität des Standorts besser genutzt und das vorhandene Bauvolumen optimal ausgeschöpft werden. Die neue Erschliessung entflechtet die Zugänge und stärkt die innere Logik des Ensembles.
Trotz der Eingriffe bewahrt der Komplex seinen vertrauten Ausdruck im Ortsbild. Gleichzeitig entsteht für die Bevölkerung ein neuer Ort des Austauschs, der Begegnung und des gemeinschaftlichen Lebens – selbstverständlich, selbstverständlich integriert in die bestehende Dorfstruktur.
2024 Studienauftrag — Programm: Umbau des bestehenden Complexe de l’Hôtel de France mit Restaurant, Gemeindesaal, Dorfladen, Hotelzimmer, Gemeindeverwaltung, Wohnungen — Auftraggeberin: Gemeinde Cuarnens
Die Eingangshalle bildet das Herzstück der Anlage. Sie fungiert als Begegnungsort und erweitert den öffentlichen Raum sinnbildlich in das Gebäude hinein – wie eine Fortsetzung des Dorfplatzes.
Durch eine gezielte Umorganisation der Verkehrsführung kann die Qualität des Standorts besser genutzt und das vorhandene Bauvolumen optimal ausgeschöpft werden. Die neue Erschliessung entflechtet die Zugänge und stärkt die innere Logik des Ensembles.
Trotz der Eingriffe bewahrt der Komplex seinen vertrauten Ausdruck im Ortsbild. Gleichzeitig entsteht für die Bevölkerung ein neuer Ort des Austauschs, der Begegnung und des gemeinschaftlichen Lebens – selbstverständlich, selbstverständlich integriert in die bestehende Dorfstruktur.
2024 Studienauftrag — Programm: Umbau des bestehenden Complexe de l’Hôtel de France mit Restaurant, Gemeindesaal, Dorfladen, Hotelzimmer, Gemeindeverwaltung, Wohnungen — Auftraggeberin: Gemeinde Cuarnens
