︎
atelier ba.le
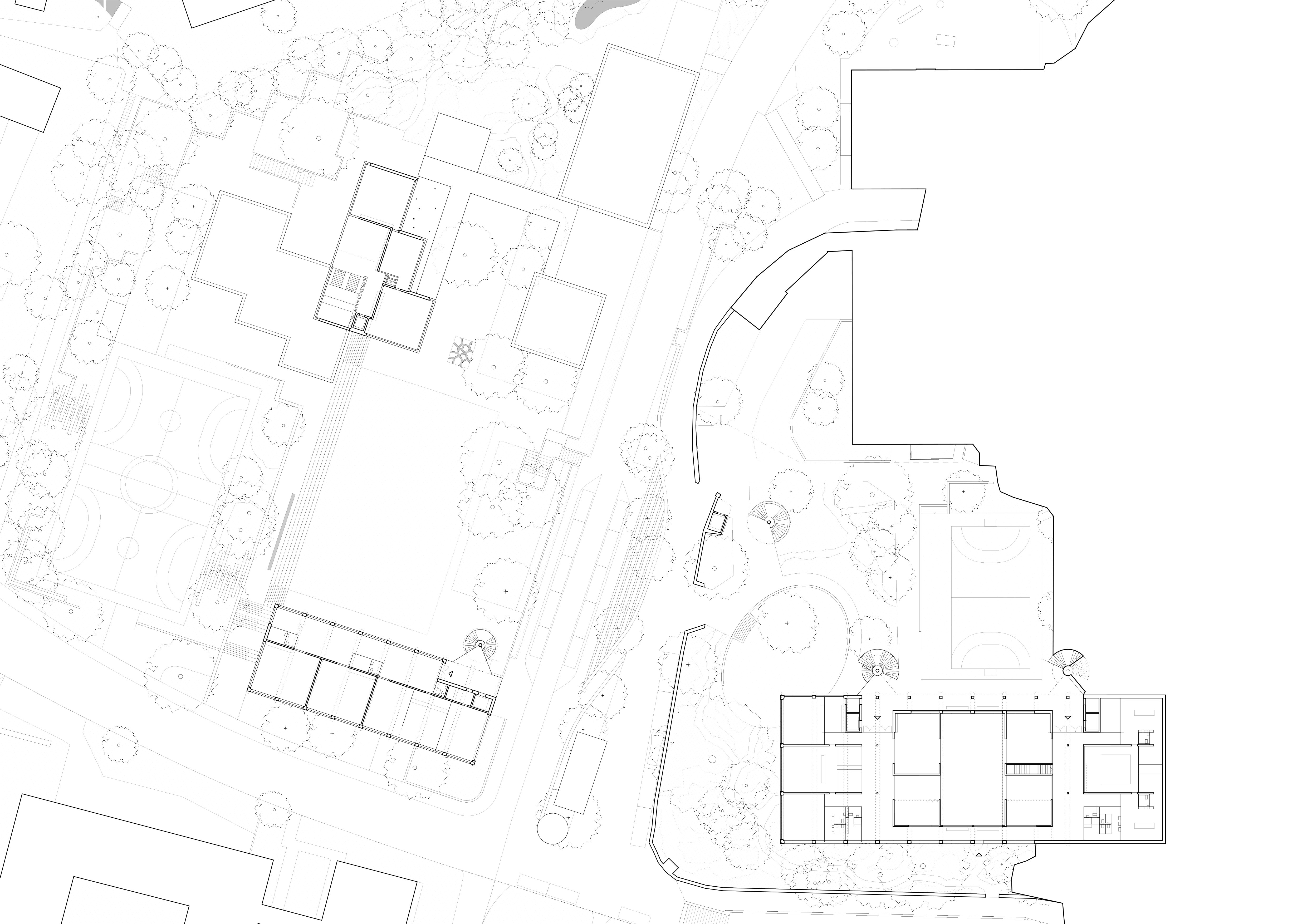
2022 Projektwettbewerb im offenen Verfahren — Programm: Primarschulhauserweiterung und Neubau einer heilpädagogischen Schule im Perimeter des Klosters Maria Opferung — Auftraggeberin: Stadt Zug
(i)
Bâtiment communal et auberge-restaurant à Port Gitana, Bellevue, 1.Preis, 2020-2025
(v)
Gemeindehaus und Hotel-Restaurant Erlibacherhof, Erlenbach, 1.Preis, 2021
(vii)
Dreifach Kindergarten Kreuzfeld, Langenthal, 3.Preis, 2022
(x)
UniHub Académique, Neuchâtel, Wettbewerb, 2022
(xiv)
Cabanons et mobilier du Grand Chasseral, Wettbewerb 2023
(xv)
Umbau des Hôtel de France, Cuarnens, Studienauftrag 2024
(xvi)
Kulturzentrum KiZ, Walenstadt, 2.Preis, 2024
(xvii)
Extension du Collège de La Sallaz, Lausanne, Wettbewerb, 2024
(xix)
La Poterlaz, Maison de Ville, Villeneuve, Studienauftrag 2. Stufe, 2025
(m)
Projektliste